
Ukupna kvadratura
88,25 m2


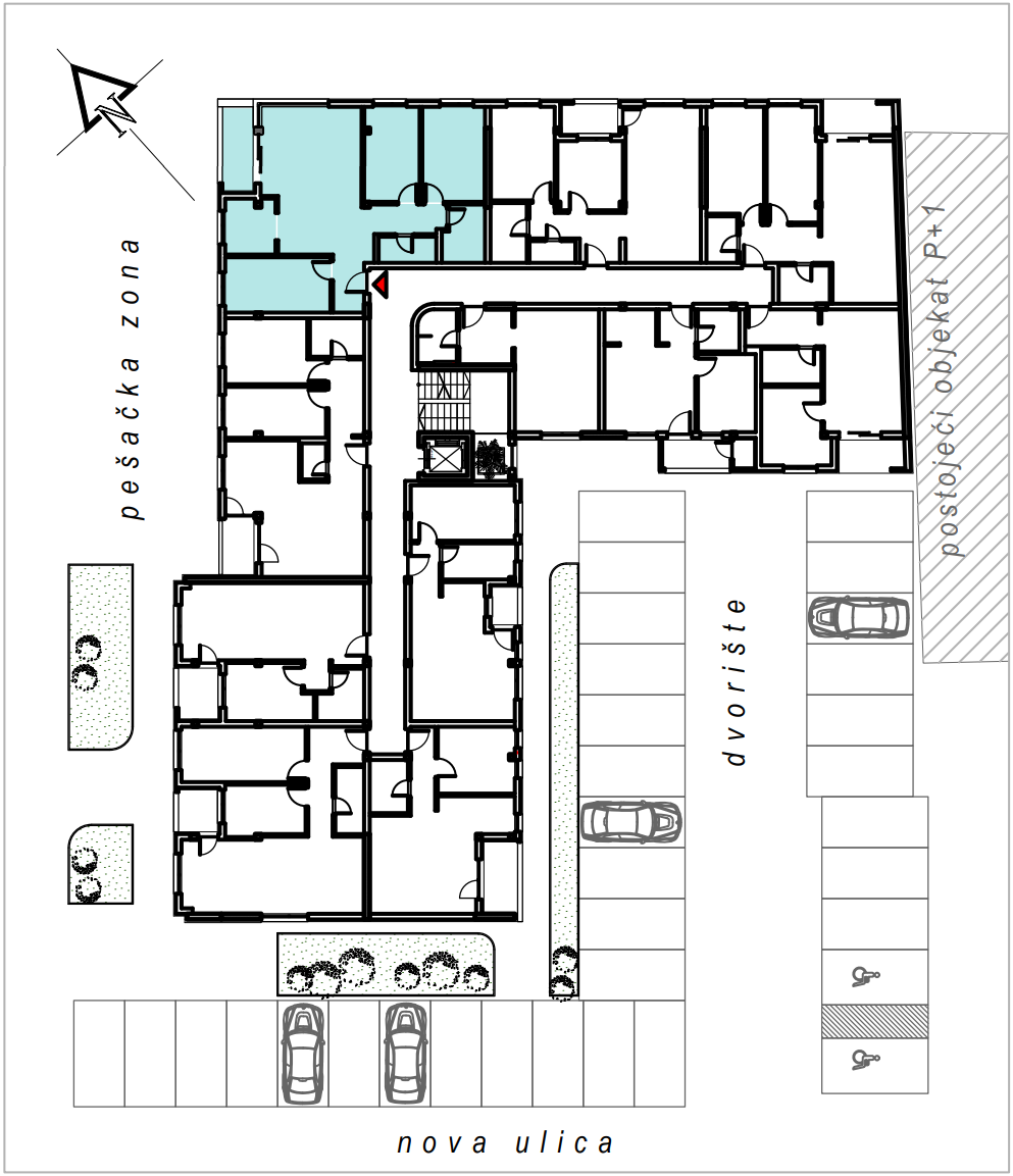
Luksuzan porodični stan površine 88,25 m² osmišljen je da ponudi savršen spoj komfora i praktičnosti. Sadrži prostrani dnevni boravak, tri udobne spavaće sobe, dva kupatila i kuhinju sa prirodnom ventilacijom. Terasa sa očaravajućim pogledom na Hram Vaznesenja čini ga izuzetnim mestom za život. Nalazi se na trećem spratu.
kontakt