
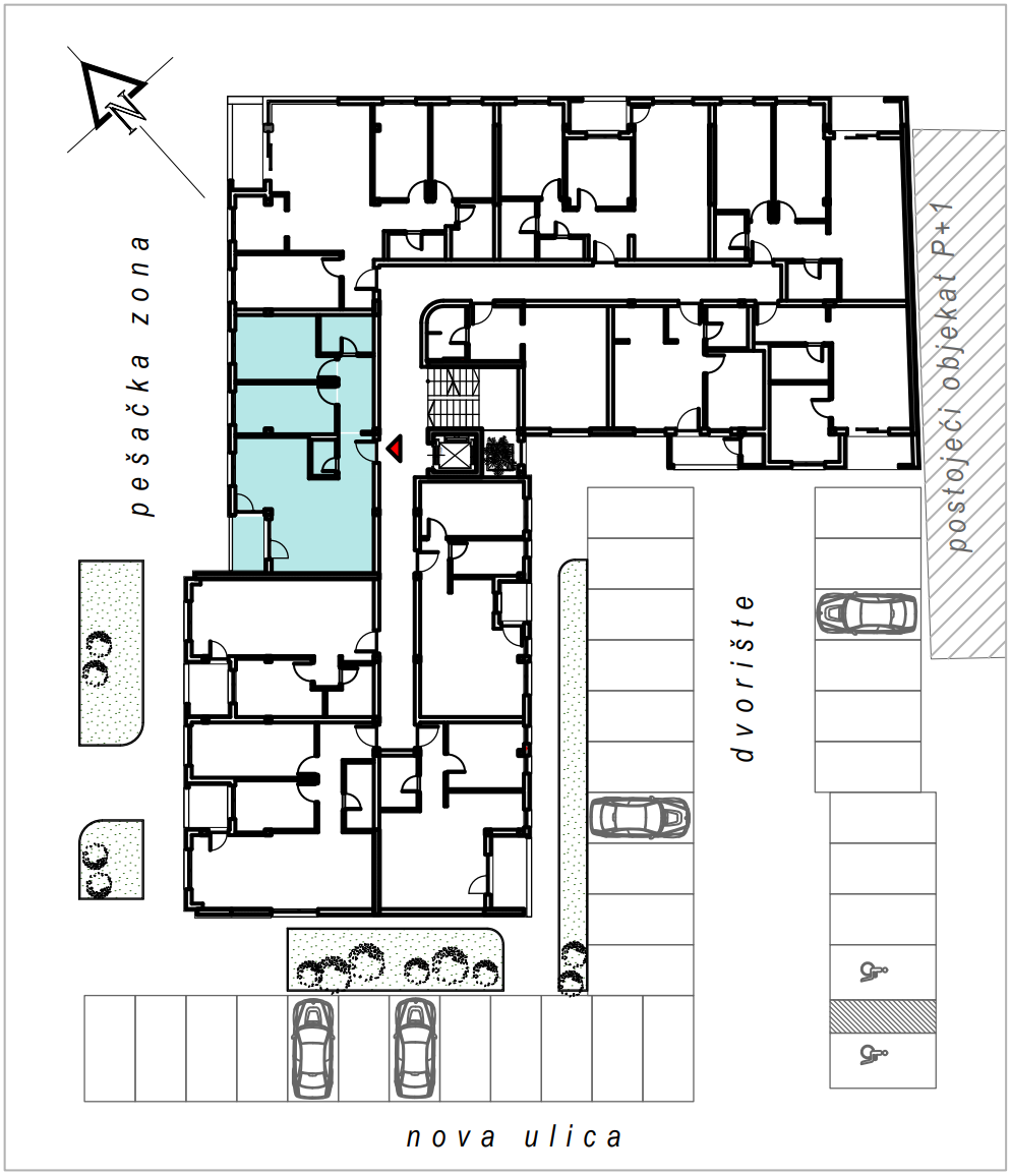
Ukupna kvadratura
67,19 m2


Porodični stan od 67,19 m², sa prelepim pogledom na Hram Vaznesenja, pruža osećaj topline i udobnosti. Pored prostranog dnevnog boravka i kuhinje, poseduje dve spavaće sobe, veliko kupatilo i odvojen toalet. Prostrana terasa predstavlja pravu oazu za opuštanje.
kontakt