
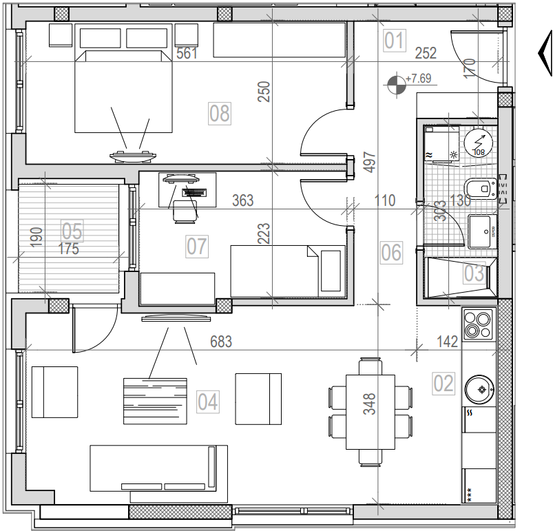
Ukupna kvadratura
63,51 m2


Prostran porodični stan od 63,51 m² nalazi se na drugom spratu i ima predivnu terasu sa pogledom na Hram Vaznesenja. Dnevni boravak upotpunjuju dve udobne spavaće sobe, pružajući dovoljno prostora zaporodični komfor.
kontakt