
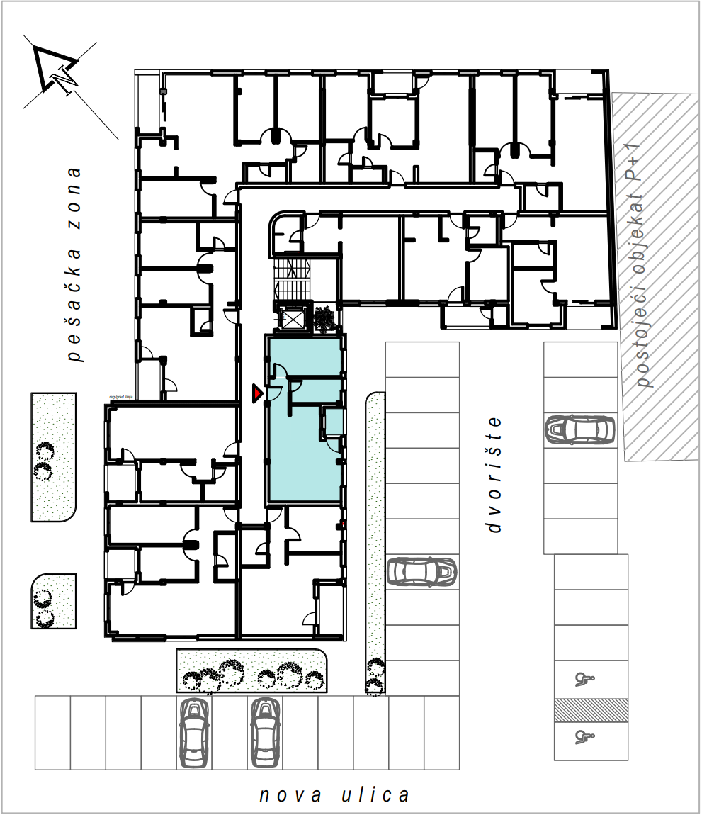
Ukupna kvadratura
46,11m2


Smešten na prvom spratu, ovaj stan površine 46,11m² odlikuje se funkcionalnim rasporedom i prijatnom atmosferom. Prostrani dnevni boravak sa izlazom na terasu upotpunjuje udobna spavaća soba. Sve prostorije imaju prirodno osvetljenje i ventilaciju, a pogled se pruža ka mirnom dvorištu.
kontakt