O nama
Prodaja stanova i lokala
Saradnici na projektu
Kontakt
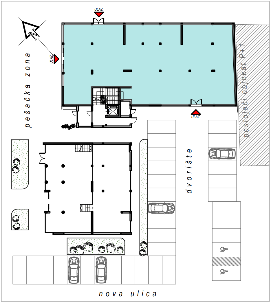
Plan
Pozicija lokala
Ukupna kvadratura
357,39 m
2
Lokal br. 1
kontakt